A single-family home for a family moving in from the suburbs

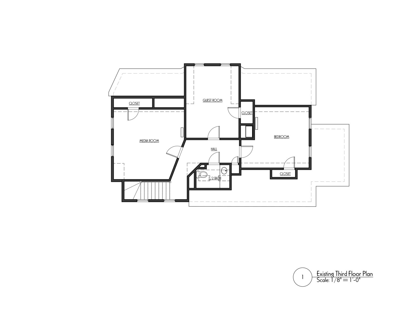
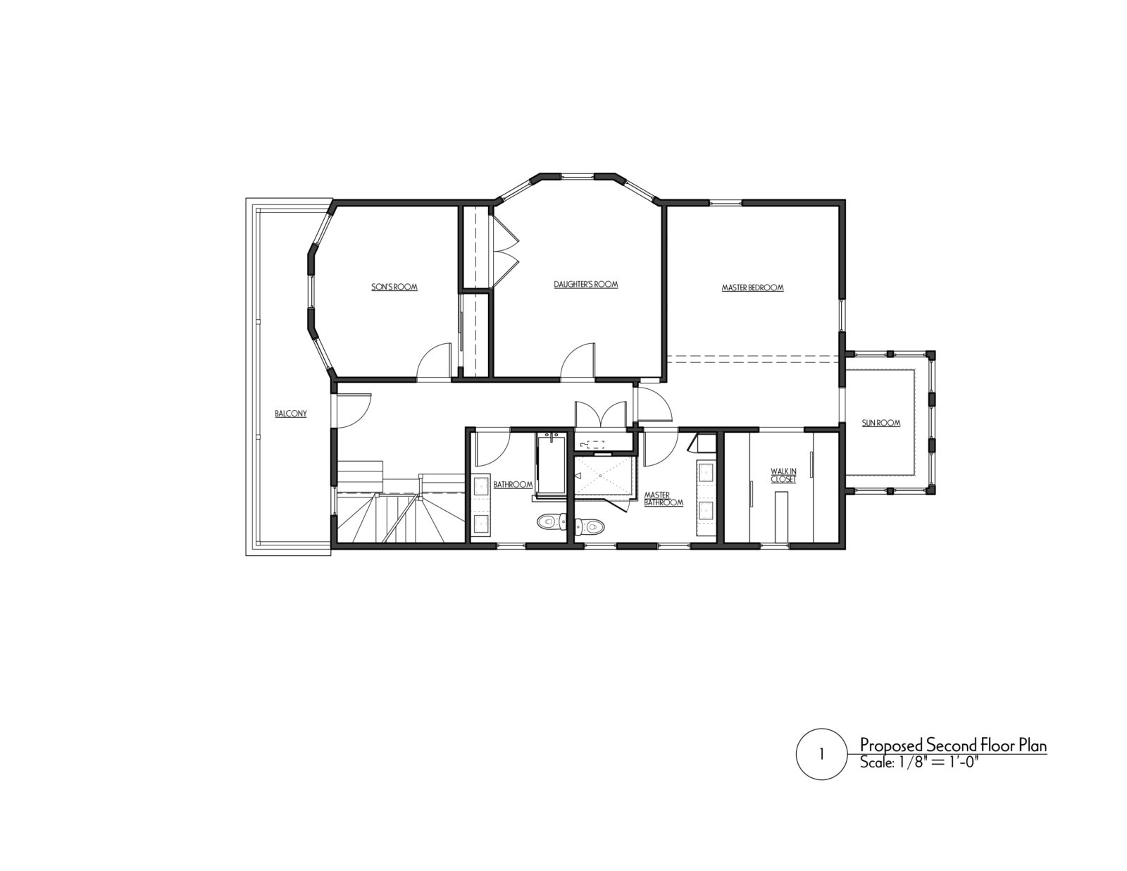
This single family home converted to a single family from a two-family. We removed a 2nd stair to gain space on the first and 2nd floors, reconfigured the first floor with a new kitchen, home office and 1/2 bath plus we opened up walls between the kitchen, dining and living rooms. The 2nd floor was reconfigured to have a master bedroom suite, bedrooms and kid’s bath. The third floor attic space was reconfigured with a family room, home office and guest room with a split bathroom. Other work includes high density spray foam insulation, a new high efficiency HVAC system, all new lighting.


Plans


/ 21